


























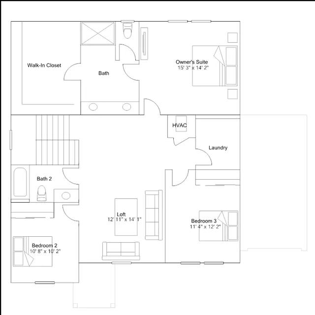
A spacious two-story home with a fantastic layout, featuring a versatile bedroom near the entry and an open concept floorplan consisting of a modern kitchen, Great Room and dining area. Upstairs are three additional bedrooms, including the luxe owners suite, which includes a spa-inspired bathroom and generous walk-in closet. A loft provides convenient shared living on the top level, the perfect place for an additional living area or study.
Stay informed with Livabl updates on new community details and available inventory.