




























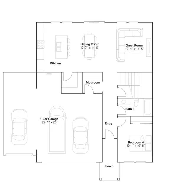
This two-story home features an open floorplan on the first level, comprised of a Great Room, stylish kitchen and dining room, along with a secondary bedroom located near the entry. Three additional bedrooms can be found upstairs, including the luxurious owners suite, complete with an en-suite bathroom and walk-in closet. A bonus room offers shared living on the top floor, perfect for young children or as a casual living space.
Stay informed with Livabl updates on new community details and available inventory.