












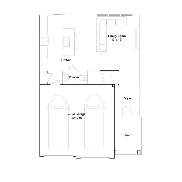
This two-story home features a family room and modern kitchen that melds together to promote seamless everyday living, along with an entrance to the backyard for outdoor activities. Upstairs are all three bedrooms, including the owners suite with an en-suite bathroom and generous walk-in closet.