














































































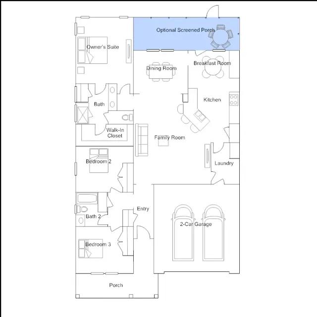
This single-story home has an open concept feel with an optional second level featuring two additional bedrooms and a bonus room. The open concept family room seamlessly expands to the kitchen, formal dining room and a breakfast nook that extends to the lanai for outdoor entertaining. There is a total of three bedrooms, including the owners suite.