




















































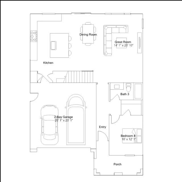
This two-story home showcases a spacious open floorplan on the first level, shared between the Great Room, kitchen and dining room, while a secondary bedroom off the foyer is a comfortable retreat for overnight guests or a home office. A versatile loft is surrounded by three more bedrooms on the second floor, including the luxe owners suite which features a bedroom, en-suite bathroom and walk-in closet.