hero-image-0

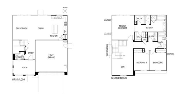
Residence 1986

Santa Rosa Highlands
Sold
Sold
3
2
1
1,986
Residence 1986 details
unit-banner-image
unit-banner-image
unit-banner-image
Residence 1986 is now sold.
Check out available nearby homes below.