hero-image-0
hero-image-1
hero-image-2
hero-image-3
hero-image-4
hero-image-5

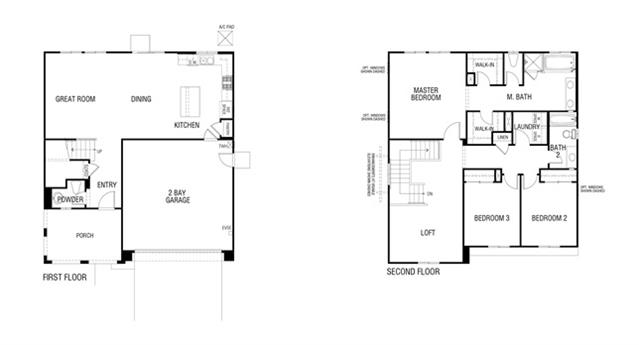
Sequoia at Santa Rosa Highlands Plan

Santa Rosa Highlands
Sold
Sold
3
2
1
From 1,986
unit-banner-imageunit-banner-imageunit-banner-image
Sequoia at Santa Rosa Highlands Plan details
Sequoia at Santa Rosa Highlands Plan is now sold.