


































































Get additional information including price lists and floor plans.
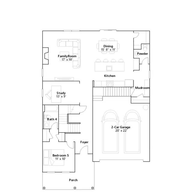
With fantastic features including a mudroom near the garage entry, this single-level home boasts a low-maintenance layout designed for modern lifestyles. Two bedrooms are located off the foyer, leading to an open-concept floorplan with convenient access to a covered patio, ready for seamless entertaining and multitasking. The luxe owners suite is tucked away at the back of the home, complete with a spa-inspired bathroom and generous walk-in closet.
Stay informed with Livabl updates on new community details and available inventory.