New Homes for Sale
Articles
Professionals
Log in
Sign up
Photos 4
Videos 0
Map
Interactive floor plan 0
Virtual 0
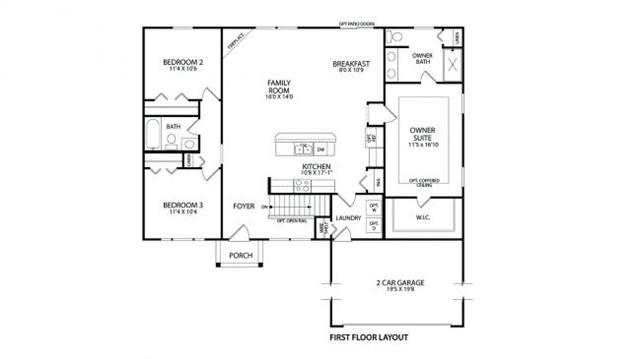
Westport Plan
By
Maronda Homes
|
Deer Creek Run
Community
Available homes
Get updates
Save
Request info
Request info
Community
Available homes
Request info
Get updates
Save
Request info
Deer Creek Run
Get updates
Request info
Sold
Sold
3
2
From 1,536
Westport Plan details
Address:
Mount Sterling, OH 43143
Plan type:
Detached Single Story
Beds:
3
Full baths:
2
SqFt:
From 1,536
Ownership:
Fee simple
Interior size:
From 1,536 SqFt
Lot pricing included:
Yes
Westport Plan is now sold.