hero-image-0
hero-image-1
hero-image-2
hero-image-3
hero-image-4
hero-image-5
hero-image-6
hero-image-7
hero-image-8

2212 Skyler Dr

By

D.R. Horton

   |   

Oyster Point

Oyster Point
Sold
Sold
4
2
1
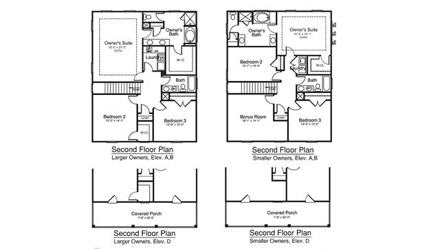
2,560
2212 Skyler Dr details
unit-banner-image
unit-banner-image
unit-banner-image
2212 Skyler Dr is now sold.
Check out available communities below.