































































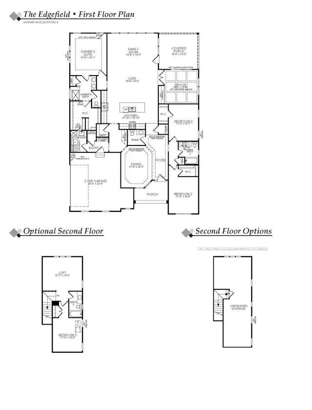
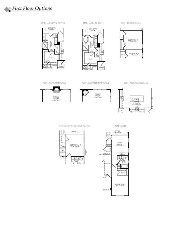
The Edgefield is a spacious three bedroom two and a half bath ranch style home with a side load garage first floor primary bedroom formal dining room separate office open family room dining area kitchen with island and pantry garage storage area and a covered rear porch. Options available to personalize this home include an optional guest suite with a living area a fourth bedroom on the first floor and an optional second floor with a bedroom full bath and loft area.