









































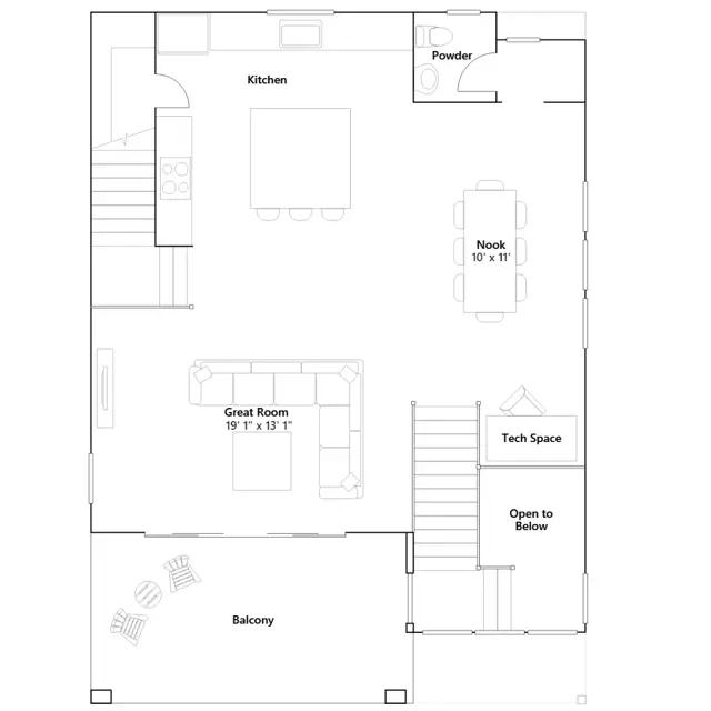
The first level of this three-story home is host to a spacious bedroom suite, ideal for overnight guests, household members that need privacy or a home office. Upstairs, the Great Room, kitchen and dining room are situated among an open floorplan, offering access to a balcony through center-slide glass doors for effortless indoor-outdoor living and entertaining. Three more bedrooms are located upstairs, including the luxe owners suite which features a private bathroom and two walk-in closets.
Stay informed with Livabl updates on new community details and available inventory.