





























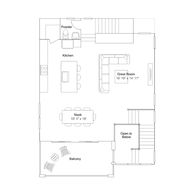
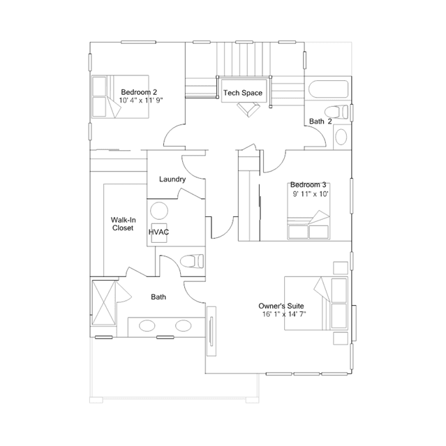
The first level of this three-story home features a bedroom suite, great for overnight guests, a home office or a media room. Upstairs, the Great Room, kitchen and nook share a convenient and contemporary open floorplan with access to a balcony for seamless indoor-outdoor living and entertaining while a tech space and three additional bedrooms are situated on the top floor.
Stay informed with Livabl updates on new community details and available inventory.