












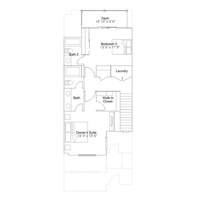
The first level of this two-story home is host to a spacious open floorplan where the Great Room, kitchen and dining room flow into one another effortlessly. Both bedrooms are situated on the second floor, each with an en-suite bathroom. The owners suite also features a generous walk-in closet. Homebuyers have the option to add a deck off the secondary bedroom.