















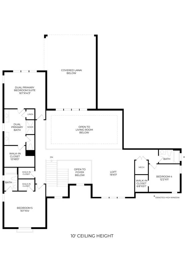
The Bressols' inviting porch and double-door entry reveal the two-story foyer, expansive living room, and formal dining room, with views to the spacious great room, casual dining area, and desirable covered lanai. The well-equipped kitchen is complete with a large center island with breakfast bar, ample counter and cabinet space, roomy walk-in pantry, and butler pantry to the dining room. The magnificent primary bedroom suite is highlighted by a relaxing retreat, dual walk-in closets, and deluxe primary bath with dual vanities, large soaking tub, luxe shower with seat, and private water closet. Central to a generous loft, secondary bedrooms feature sizable closets, one with private bath with dual vanities, soaking tub, shower, and private water closet; two with private bath. Additional highlights include a first floor bedroom suite with closet and private bat...
Stay informed with Livabl updates on new community details and available inventory.