






























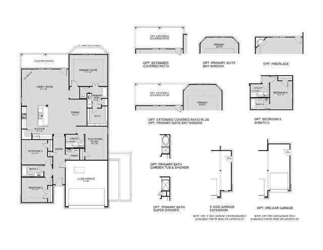
The Highlands plan is a smartly designed 1-story home with 3 bedrooms, 2.5 bathrooms, and an open-concept living, kitchen, and dining area. This floorplan features a covered patio, an oversized pantry, a kitchen island with bar seating, a large family room, and a 2-car garage. The primary suite includes a walk-in closet with ample space connected to a private bathroom. The Highlands also features a flex space ideal for an office, playroom, or nursery, a dedicated laundry room and entryway powder room.
Stay informed with Livabl updates on new community details and available inventory.