




























































Get additional information including price lists and floor plans.
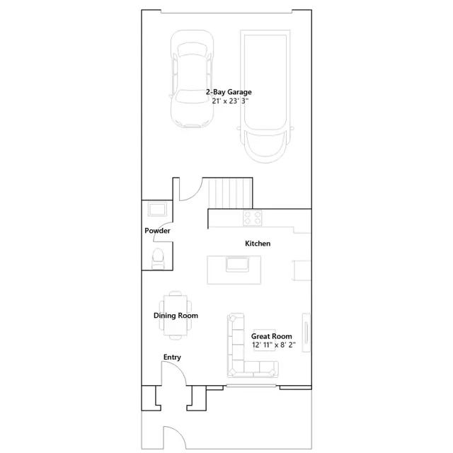
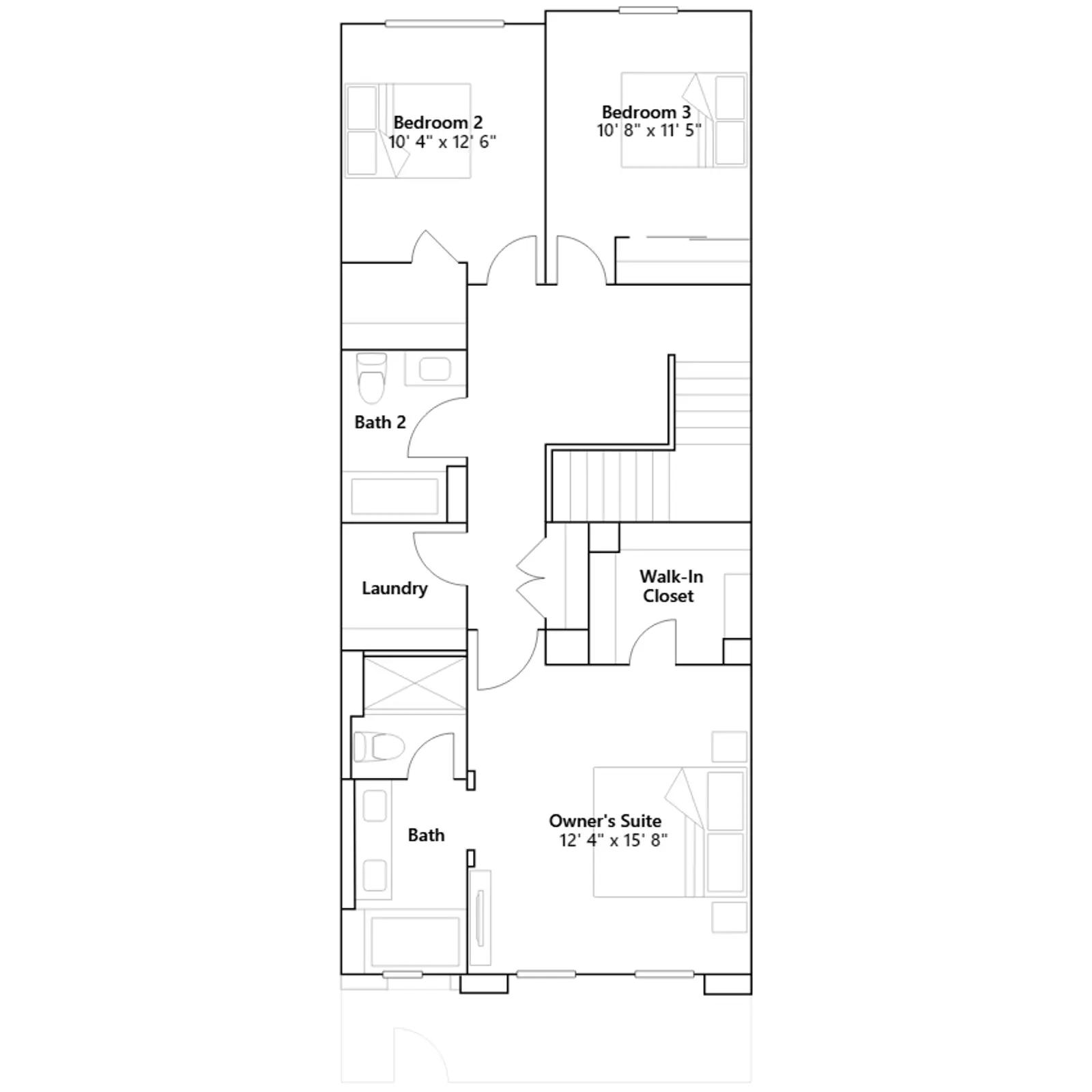
This two-story home features a modern open floorplan on the first level, consisting of a relaxing Great Room, elegant dining room and fully-equipped kitchen. Upstairs there are three bedrooms, including the luxurious owners suite, which is nestled into a corner of the home for enhanced privacy.
Stay informed with Livabl updates on new community details and available inventory.