



















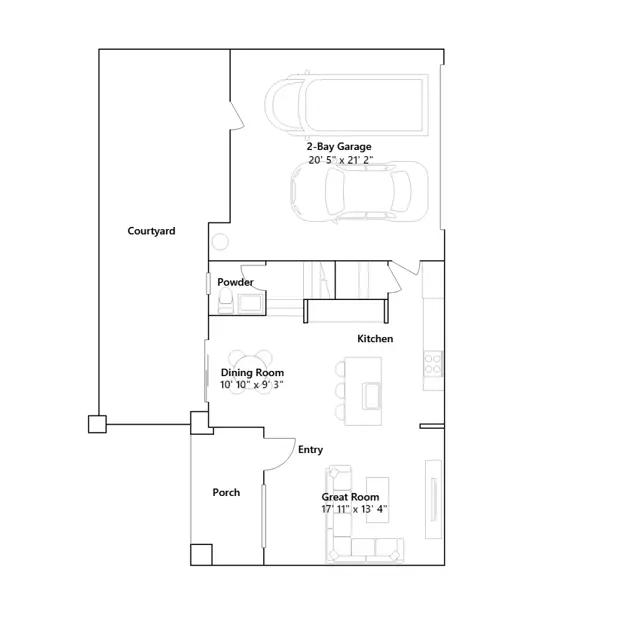
The first floor of this two-story home shares an open layout between the kitchen, dining room and Great Room, making entertaining easy. Upstairs is a versatile flex space that can double as an additional shared living space and office, depending on the household's needs. There are two secondary bedrooms on the second floor, along with a luxe owner's suite with an en-suite bathroom and walk-in closet, giving residents a spa-like experience.
Stay informed with Livabl updates on new community details and available inventory.