


































































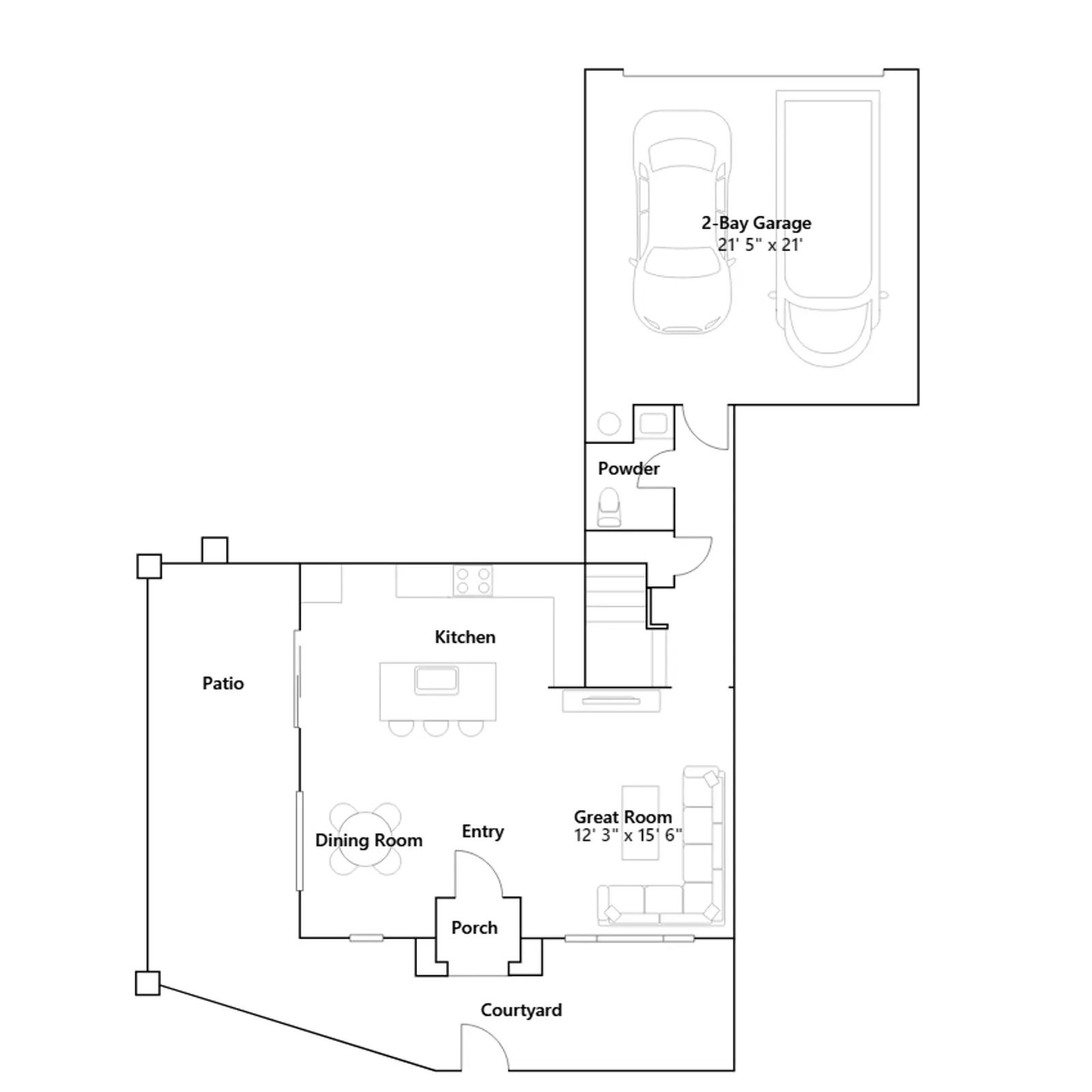
This two-story home is designed with hosting special gatherings in mind, with the first floor sharing an open layout between the kitchen, dining room and Great Room. Upstairs is a versatile loft that can serve as an additional shared living space, office or play area, depending on the household's needs. There are two secondary bedrooms on the second floor, along with a luxe owner's suite sitting privately in its own corner with an en-suite bathroom and walk-in closet.
Stay informed with Livabl updates on new community details and available inventory.