
























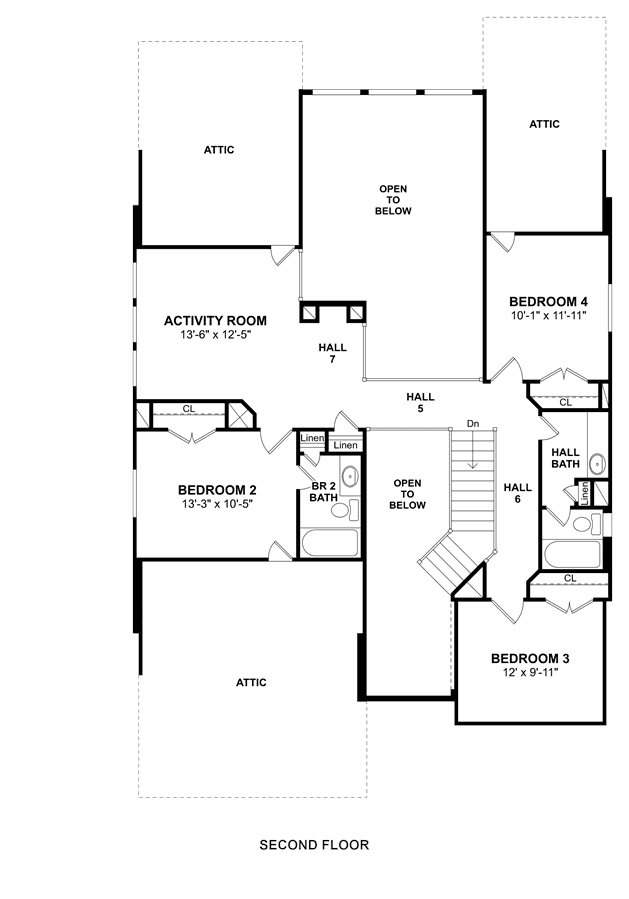
Inviting dining room off foyer with access to kitchen. Spacious kitchen overlooking two-story great room with opt. fireplace . Cozy dining area with access to rear porch, perfect for entertaining. Elegant downstairs owner’s suite with large walk-in closet. Sweeping staircase leading to large upstairs activity room. Attached 2-car garage.