














































































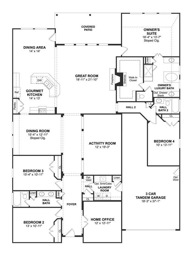
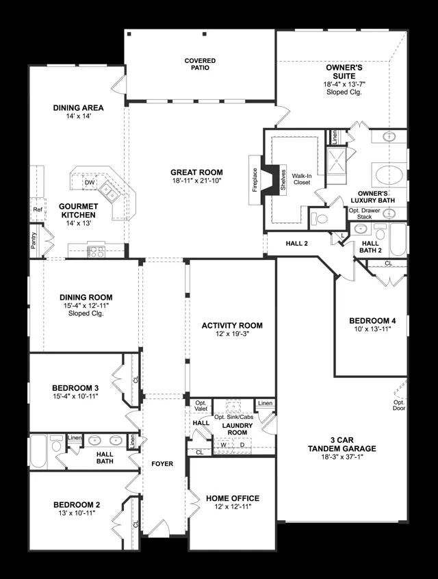
Private home office off foyer, ideal for working from home. Inviting dining room with direct access to kitchen. Spacious gourmet kitchen with island and dining area. Open great room accented with fireplace. Activity room or optional media room, perfect for entertaining. Covered rear patio encouraging outdoor living. Attached tandem 3-car garage.