









































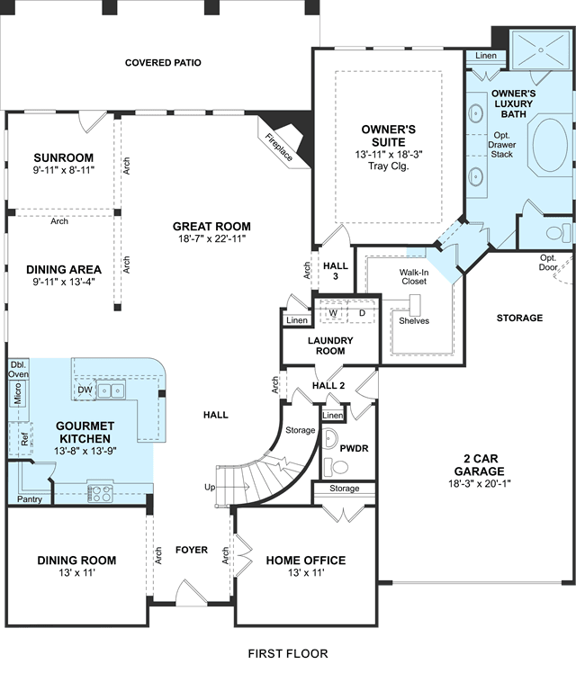
Inviting dining room and home office off foyer. Elegant and sweeping staircase in foyer. Gourmet kitchen overlooking great room with corner fireplace. Spacious downstairs owner's suite with extensive walk-in closet. Welcoming sunroom off dining area. Attached tandem 3-car garage.