hero-image-0
hero-image-1
hero-image-2
hero-image-3
hero-image-4
hero-image-5

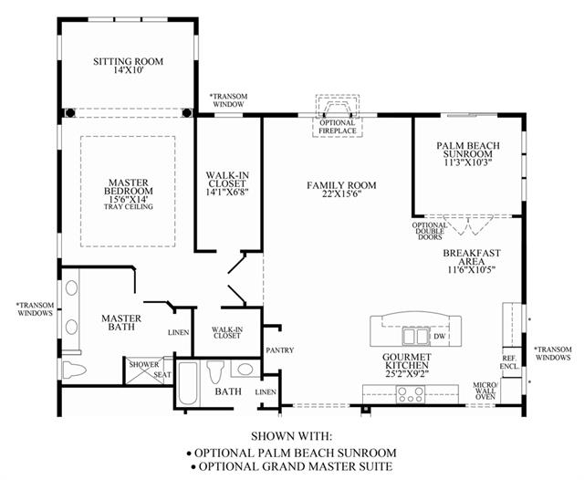
Marshall Plan

By

Toll Brothers

   |   

Regency at Monroe

Regency at Monroe
Sold
Sold
2
2
From 2,230
Marshall Plan details
Marshall Plan is now sold.
Check out available communities below.