





































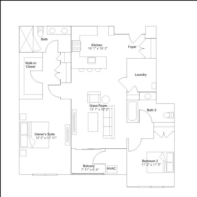
This new loft home features a modern layout with an open-concept floorplan that combines the kitchen and Great Room, with convenient outdoor access via a private balcony. Two spacious bedrooms are nestled into private corners at open ends of the home, including the luxe owners suite with an en-suite bathroom and walk-in closet.
Stay informed with Livabl updates on new community details and available inventory.