hero-image-0
hero-image-1

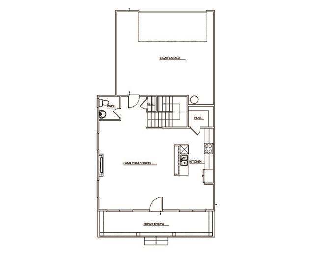
Gavin Plan

Brookland Commons
Sold
Sold
2
3
2
1
From 1,950
unit-banner-imageunit-banner-imageunit-banner-image
Gavin Plan details
Gavin Plan is now sold.
Check out available communities below.