New Homes for Sale
Articles
Professionals
Log in
Sign up
Photos 6
Videos 0
Map
Interactive floor plan 0
Virtual 0
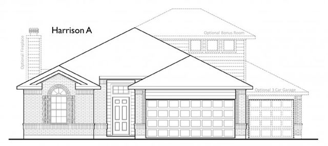
Harrison Plan
By
First America Homes
|
Cypress Point
Community
Available homes
Get updates
Save
Request info
Request info
Community
Available homes
Request info
Get updates
Save
Request info
Cypress Point
Get updates
Request info
Sold
Sold
3
2
From 2,007
Harrison Plan details
Address:
Monroe City, TX 77514
Plan type:
Detached Single Story
Beds:
3
Full baths:
2
SqFt:
From 2,007
Ownership:
Fee simple
Interior size:
From 2,007 SqFt
Lot pricing included:
Yes
Garage:
2
Harrison Plan is now sold.