














































Get additional information including price lists and floor plans.
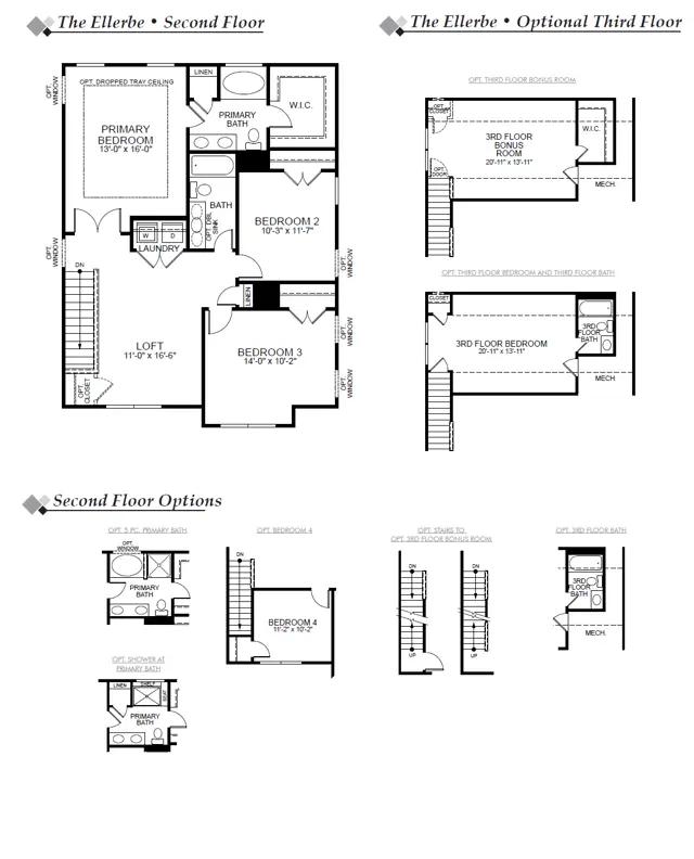
The Ellerbe is a two story three bedroom two and a half bath home with a spacious and open family room kitchen with island and pantry and a separate breakfast area. The second floor features all three bedrooms including the primary bedroom with a large closet a laundry room a hall bathroom and a loft area.Options available to personalize this home include a covered rear porch screen porch or sunroom several fireplace options a fourth bedroom in lieu of the loft area and an optional third floor with a bonus room or bedroom and full bath.
Stay informed with Livabl updates on new community details and available inventory.