









































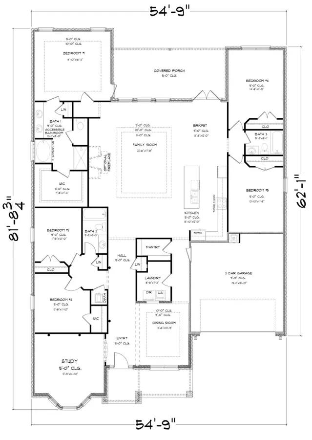
Step into the McKenzie at Heritage Lake in Mobile, Alabama. At over 3,100 square feet, this fantastic home boasts 5-bedrooms, 3-bathrooms, a study and 2-car garage. Entering the home, you are greeted with a study and formal dining room that is perfect for those special meals. Further inside, there are two bedrooms that share a full bathroom. The great room has an open design with a kitchen that features an island offering additional seating. The shaker-style cabinetry and stainless-steel appliances create a streamlined kitchen with a breakfast area that offers double doors leading to a covered porch. Just off the kitchen, you will find a walk-in pantry and separate laundry room. Nestled behind the breakfast area, are two more bedrooms that share a full bathroom with a shower/tub combination. The primary bedroom sits to the back of the home for privacy. I...
Stay informed with Livabl updates on new community details and available inventory.