
















































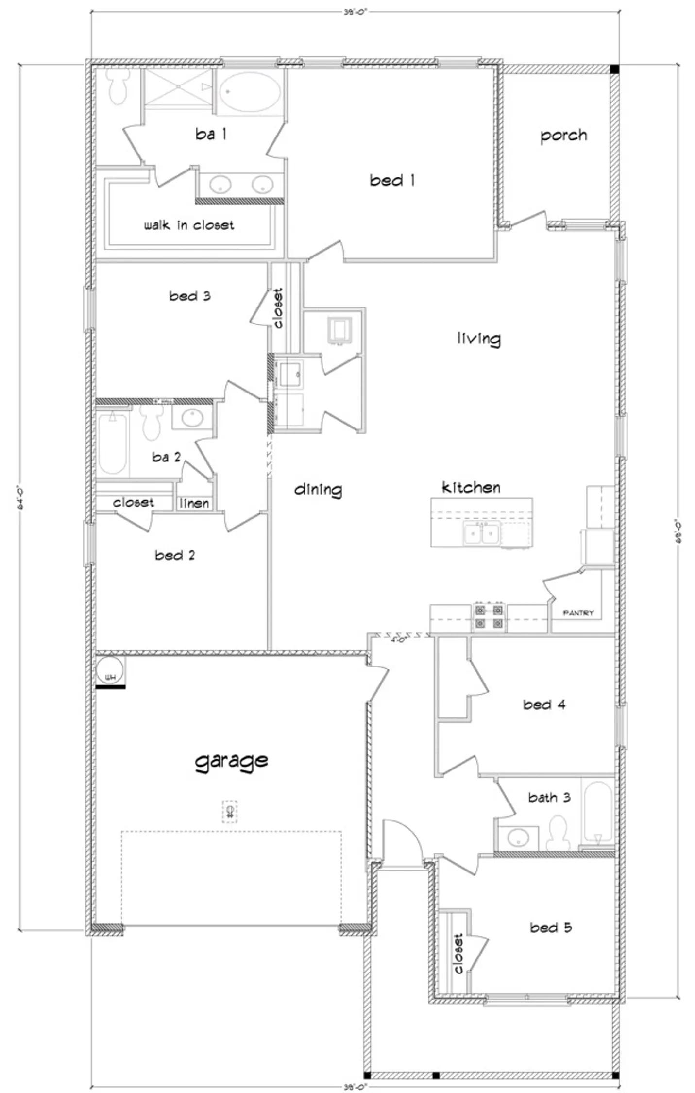
Step into the Lakeside, a new home at our Valor Ridge community in Mobile, Alabama. This thoughtful floorplan features 5-bedrooms, 3-bathrooms in over 2,000 square feet with a 2-car garage. Entering the home, youll find access to two bedrooms that share a full bathroom. To the opposite side of the home are two bedrooms, a full bathroom with a linen closet and the laundry room. The kitchen boasts a stunning design featuring granite countertops, spacious island bar, stainless-steel appliances and a corner pantry. Seamlessly connected to the family and dining room, this kitchen is ideal for hosting gatherings and enjoying quality time with loved ones. The living area has back door access to a covered porch, further enhancing the relaxing ambiance. The primary bedroom offers ample space and is accompanied by an adjoining ensuite that showcases a double vanity...
Stay informed with Livabl updates on new community details and available inventory.