































































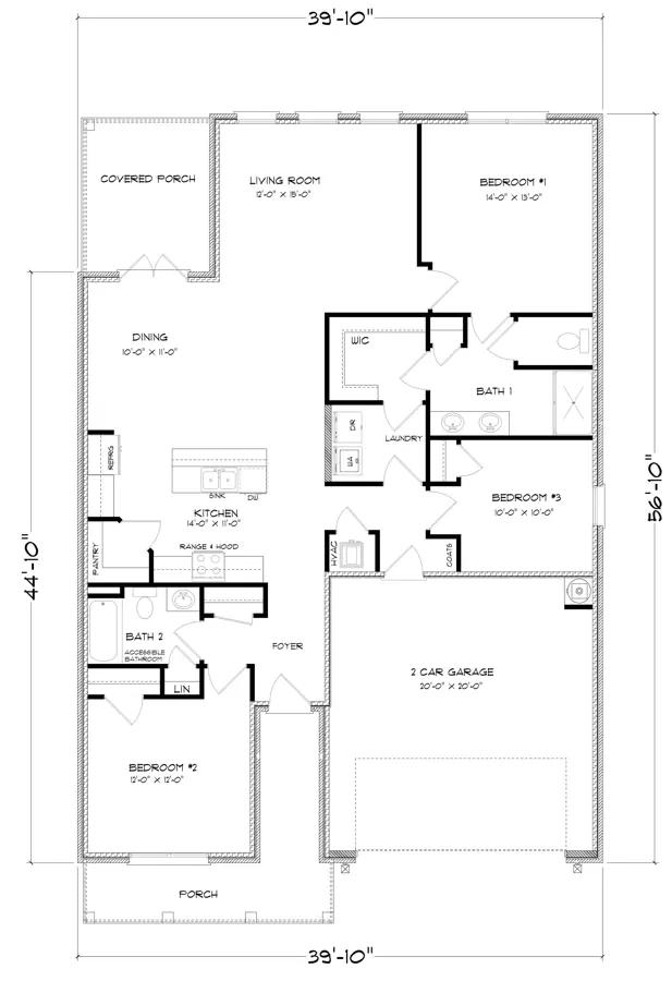
Welcome to the Arlington at Hawkins Manor in Mobile, Alabama. This inviting one-story home features three bedrooms, two bathrooms, and over 1,500 square feet of comfortable living space. With its open-concept design, modern finishes, and functional layout, the Arlington is perfect for both relaxation and entertaining. Upon entry, the front bedroom and a full bathroom are located to one side, offering privacy for guests or family. On the opposite side, a hallway leads to an additional bedroom, a laundry room, and garage access. The heart of the home opens to a spacious living area that flows seamlessly into the kitchen and dining room. The kitchen boasts shaker-style cabinetry, granite countertops, stainless steel appliances, and a large island with seating. A walk-in pantry offers ample storage. The dining area opens to the covered porch, creating a lovely ...
Stay informed with Livabl updates on new community details and available inventory.