












































































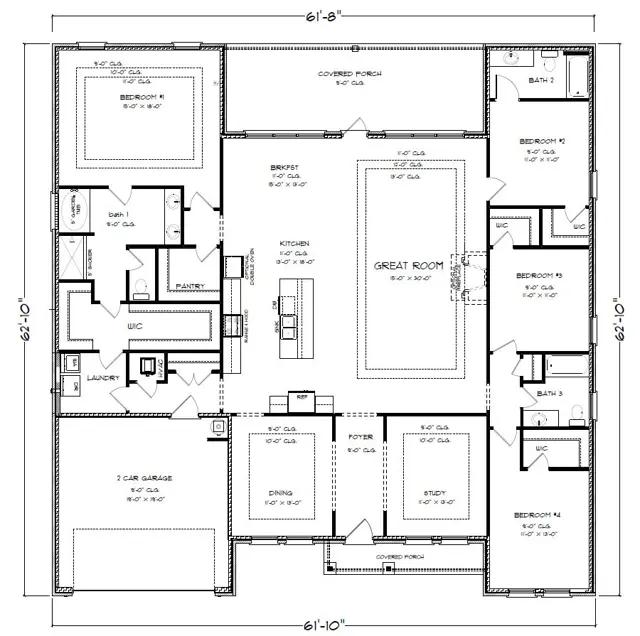
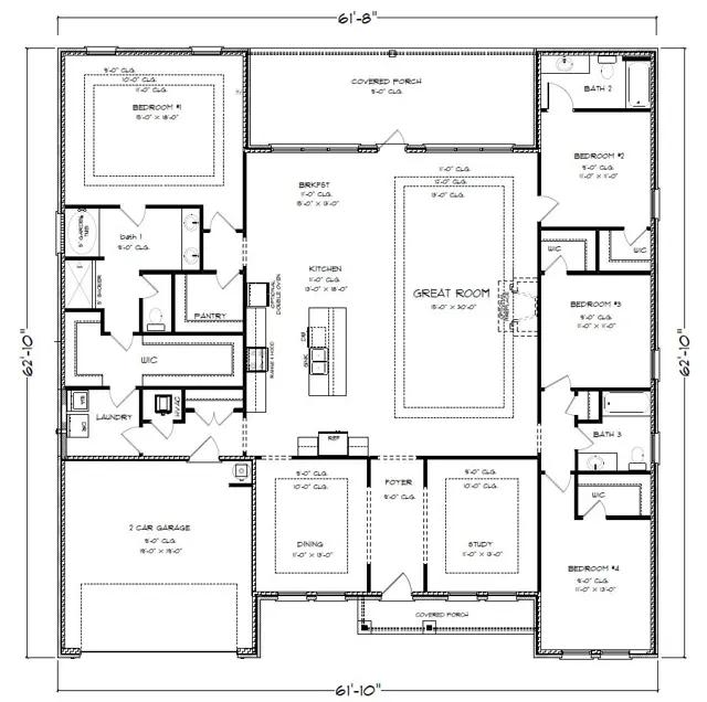
Step into the Kingston plan at Hamilton Ridge in Mobile, Alabama. At over 2,950 square feet, this fantastic home boasts 4-bedrooms, 3-bathrooms, a dining room, a study, and a 2-car garage. Entering the home, you are greeted by a formal dining room and a study. Moving inside, there are three bedrooms that share two full bathrooms off the hallway. The great room offers an open design with a kitchen that features a granite countertop island that offers additional seating. The shaker cabinetry and stainless-steel appliances create a streamlined kitchen. The breakfast area sits right off the kitchen and offers access to a covered porch. The primary bedroom sits to the back of the home for privacy. The ensuite features a linen closet, double vanity with granite countertops, shower, garden tub and a very large walk-in closet. The ensuite also offers a separate ...
Stay informed with Livabl updates on new community details and available inventory.