








































































Get additional information including price lists and floor plans.
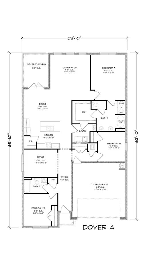
The Dover is one of our one-story floorplans that has three bedrooms and two full bathrooms offering over 1,800 square feet of comfortable space. As you enter the home, a short hall on the left leads to a bedroom, linen closet and a full bathroom with vanity and shower/tub combination. As you continue through the foyer there is a flex space that can be utilized as a study. Adjacent to the study is another short hall with a hall closet, access to the garage and entry to another bedroom. Ahead to the main living area, adjacent to the kitchen, is the laundry room that connects to the walk-in closet of the primary bedroom. The kitchen offers a wonderful layout for the home chef with an island and walk-in pantry. The shaker-style cabinetry, quartz countertops and stainless-steel appliances offer a clean, modern look. The kitchen is an open concept to the dining ...
Stay informed with Livabl updates on new community details and available inventory.