hero-image-0
The Grand Residences at Parksi...
Sold
Sold
1
From 695
unit-banner-imageunit-banner-imageunit-banner-image
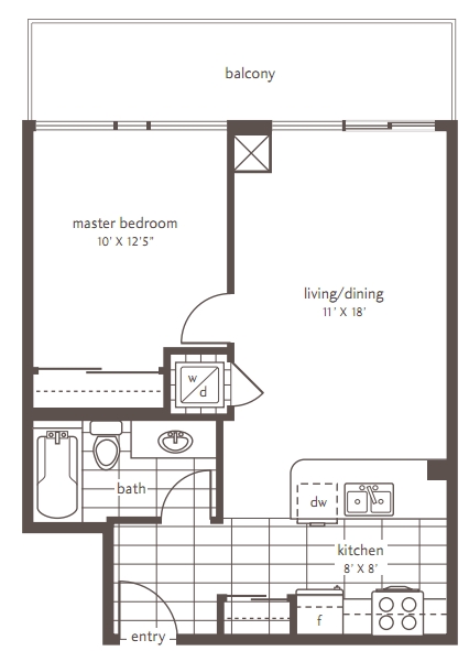
LPH10 Plan details
LPH10 Plan is now sold.
Check out available nearby plans below.