hero-image-0

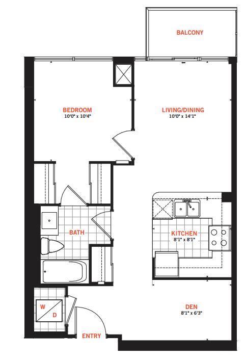
Residence 10 Plan

Pinnacle Grand Park 2
Sold
Sold
1
1
1
From 628
unit-banner-imageunit-banner-imageunit-banner-image
Residence 10 Plan details
Residence 10 Plan is now sold.
Check out available nearby plans below.