Balanger
Emerson House
Erindale, Mississauga
2K
Exhale Residences On Lakeshore
Creekside, Mississauga
Oken
Coleridge
Muller
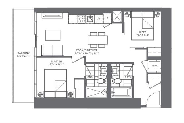
2Z
2G
2x
Construction ramps up at M City, home to Mississauga’s future tallest buildings
As construction progresses, M1 and M2 will soon surpass Mississauga’s current tallest building, the 56-storey Absolute World Condos.