




Construction ramps up at M City, home to Mississauga’s future tallest buildings
As construction progresses, M1 and M2 will soon surpass Mississauga’s current tallest building, the 56-storey Absolute World Condos.

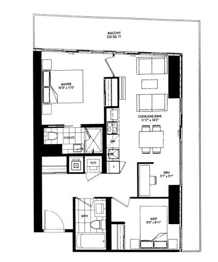
Rogers reveals first renderings of its proposed 10-tower GTA residential project
Project partner Urban Capital says the 10 towers will feature 4.3 million square feet of development, including about 6,000 units in total.

Rogers wants to build a huge 10-tower condo community in the GTA. Here’s what we know so far.
More known for putting up cell phone towers than condominiums, Rogers is vying to make its mark on the Greater Toronto Area’s housing market.