hero-image-0
Limelight Condominiums
Sold
Sold
1
From 685
unit-banner-imageunit-banner-imageunit-banner-image
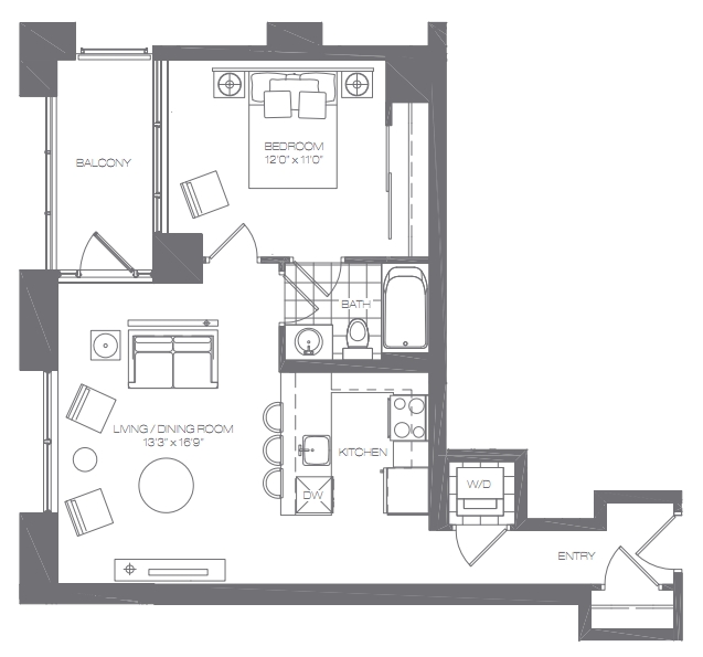
The Lily Plan details
The Lily Plan is now sold.
Check out available nearby plans below.