




GTA developments win gold at 2022 The Nationals NAHB competition
Several new home developers and marketing agencies from the Greater Toronto Area scooped up 2022 awards in the gold and silver categories.

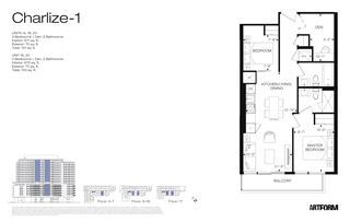
10 Greater Toronto Area condo projects launching sales this fall
With fall right round the corner, a handful of new construction projects are preparing to launch outside the city core across the Greater Toronto Area.

7 new condo projects near the future Mississauga LRT
The LRT is anticipated to bring new development projects and increased density as more residents move into the area.