



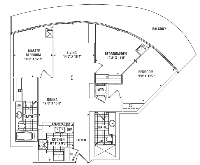
More details revealed for final towers coming to massive Pier 27 waterfront community
More details have been released about Phase Three of the Pier 27 master-planned community that’s become a prominent fixture along Toronto’s Queens Quay corridor.

Two new towers coming to Queens Quay as Toronto waterfront keeps evolving
New details have been revealed this week for the final chapter of a master-planned development that has become an iconic fixture along the Queens Quay corridor.

Construction ramps up at M City, home to Mississauga’s future tallest buildings
As construction progresses, M1 and M2 will soon surpass Mississauga’s current tallest building, the 56-storey Absolute World Condos.