hero-image-0
hero-image-1

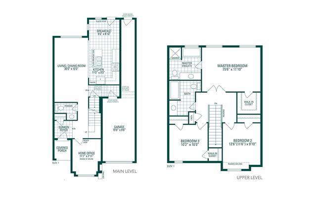
Block-340 T.H. #2 Plan

Saddle Ridge
Sold
Sold
3
2
1
From 1,641
unit-banner-imageunit-banner-imageunit-banner-image
Block-340 T.H. #2 Plan details
Block-340 T.H. #2 Plan is now sold.
Check out available nearby plans below.