hero-image-0
Jasper Village - Townhomes
Sold
Sold
3
2
1
From 3,500
unit-banner-imageunit-banner-imageunit-banner-image
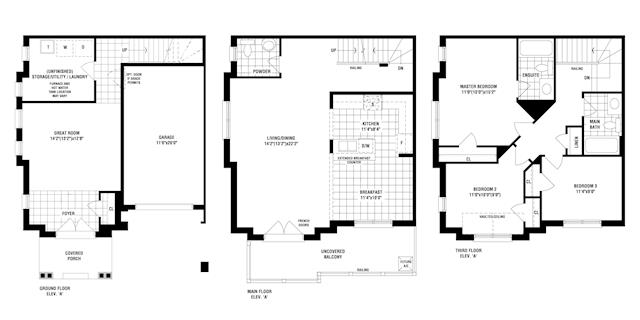
Secord Plan details
Secord Plan is now sold.
Check out available nearby plans below.

Interested? Receive updates

Stay informed with Livabl updates on new community details and available inventory.