hero-image-0

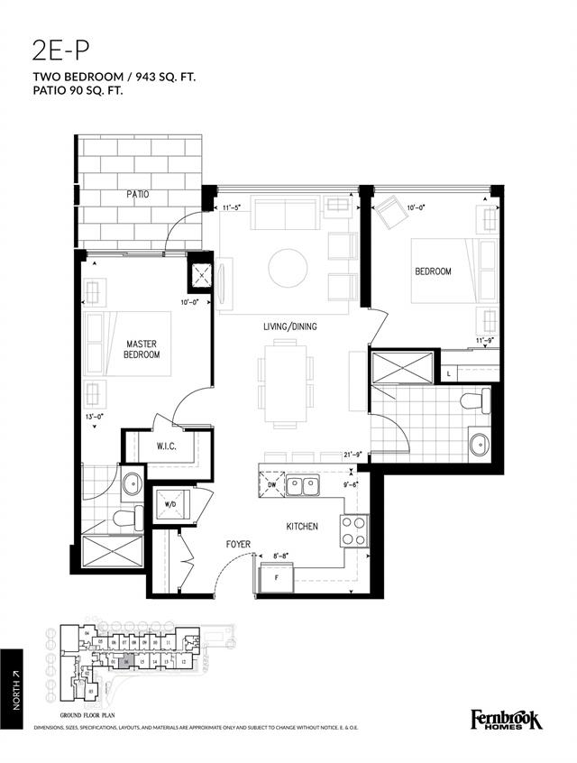
2E+P Plan

Art on Main
Sold
Sold
2
2
From 943
unit-banner-imageunit-banner-imageunit-banner-image
2E+P Plan details
2E+P Plan is now sold.
Check out available nearby plans below.