








































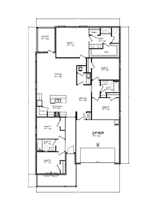
Welcome to the Lakeside Plan, at Rivers Cove, our new home community in Milton, Florida. Just over 2,100 square feet, this beautiful single- story home offers 5-bedrooms with 3-bathrooms, a 2-car garage, and a seamless open layout. As you enter the home, you are met with an inviting foyer with storage, a full guest bathroom, and a hall leading to the 2nd and 3rd secondary bedrooms. Further down the hall provides access to the 2-car garage. Further into the home, you will find the open layout of the living area and beautiful kitchen. The kitchen includes Formica countertops, stainless steel appliances, stylish shaker cabinetry, and center island. With natural light and nearby covered patio access, the living and dining area are integrated perfectly to complete this relaxing atmosphere to spend time with family or friends. Privately tucked away off of the din...
Stay informed with Livabl updates on new community details and available inventory.