





























































Get additional information including price lists and floor plans.
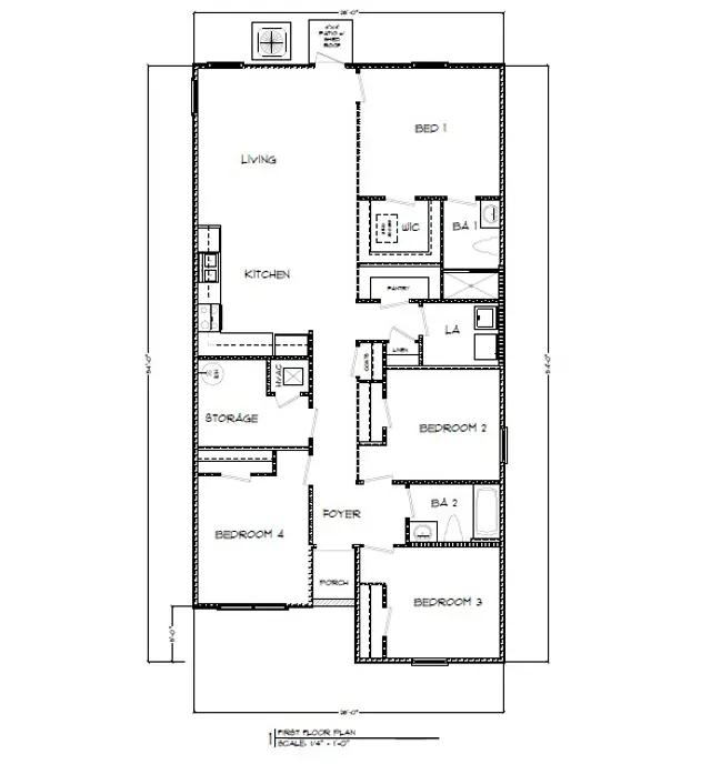
Welcome to the Sullivan Plan, at Rivers Cove, our new home community in Milton, Florida. Just over 1,400 square feet, this beautiful single- story home offers 4-bedrooms with 2-bathrooms, and a seamless open layout. When entering the home, youll have easy access from the entry way to the first three bedrooms and guest bathroom. Continuing through the entryway you will find a large open concept living area. The great room blends seamlessly into the kitchen, dining space, and living room. The kitchen offers plenty of space and an island for additional counter space. The kitchen features Formica countertops and stainless-steel appliances, including a stove, dishwasher, and microwave hood combo would make any home chef's day. You will enjoy sharing a meal in your cozy dining space. The patio is at the rear of the home with access to the family room. Moving ...
Stay informed with Livabl updates on new community details and available inventory.