
























































Get additional information including price lists and floor plans.
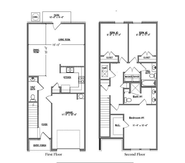
Explore the Palm, the featured floorplan of Lancelot, our new townhome community in Pensacola, Florida. This plan is designed with modern amenities and the convenience of everyday life in mind. The Palm features 3 bedrooms, 2.5 bathrooms, and a 1 car garage across 1,537 square feet for interior selections. When entering the Palm from the covered porch, you are greeted by an inviting foyer on the first floor that leads to garage access on the right, and a half-bath on the left. Just past the half bath, you will find the beautiful kitchen seamlessly integrated with the main living and dining area. The kitchen features stainless steel appliances, stunning granite countertops, breakfast bar, and pantry. The living space is made bright and airy with multiple windows and access to the covered patio. To the left of the foyer entrance, is stair access to the second flo...
Stay informed with Livabl updates on new community details and available inventory.