


















































































































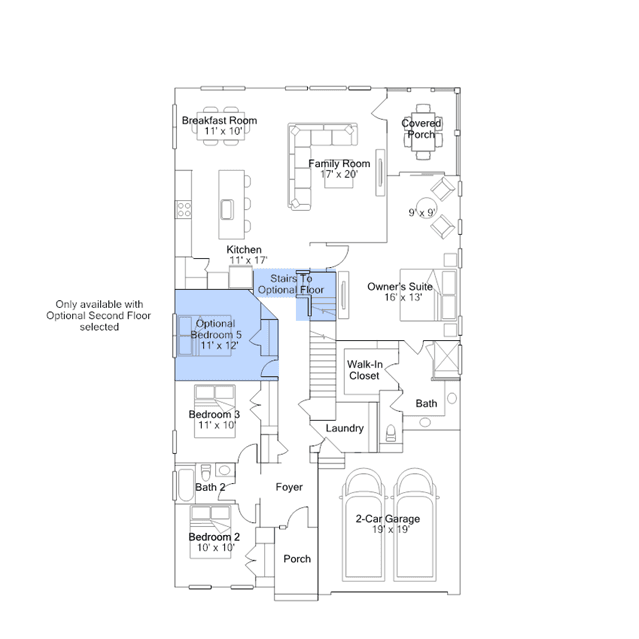
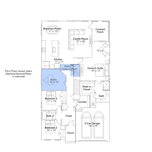
This expansive single-story home features a formal dining room followed by an open space kitchen, family room and breakfast room with quick access to the covered porch. In a quiet corner is the lavish owners suite with an attached bathroom, while framing the foyer are two restful bedrooms and a versatile two-car garage. At select homesites is an optional second floor which includes a bonus room, bedroom and bathroom.