hero-image-0
hero-image-1

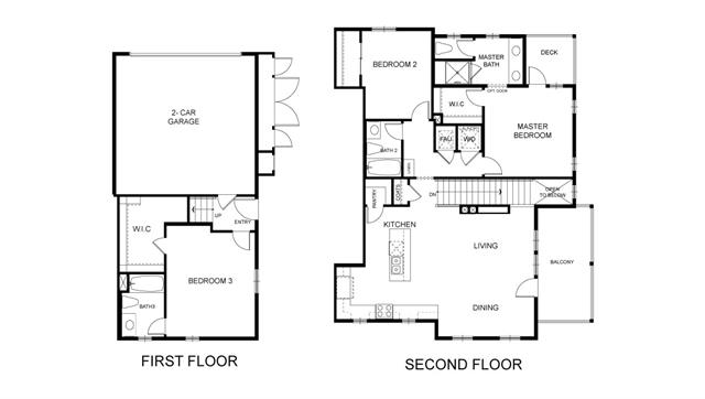
295 Baja Rose Street

Contempo at Centre Pointe
Sold
Sold
3
3
1,569
295 Baja Rose Street details
295 Baja Rose Street is now sold.
Check out available nearby townhomes below.