

























































































Get additional information including price lists and floor plans.
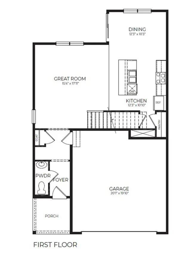
The Pine is a 1,953 square foot open concept two-story home, offering four bedrooms, two and a half bathrooms and a two-car garage. A foyer with a powder room and coat closet greets you as you enter this home from the porch. The open floorplan allows you and your loved ones to spend quality time together while in the living room, casual dining area and kitchen. The spacious kitchen has a large island with room for seating, an impressive corner pantry, plenty of cabinet space and stainless-steel appliances. The kitchen has an eat-in dining area with a sliding glass door for easy access to the backyard. Upstairs you will find the owner's suite complete with a private, double bowl vanity bathroom and two oversized walk-in closets. The additional three spacious bedrooms allow for everyone to have privacy and share access to the second full bathroom. The laund...
Stay informed with Livabl updates on new community details and available inventory.