




















Images coming soon
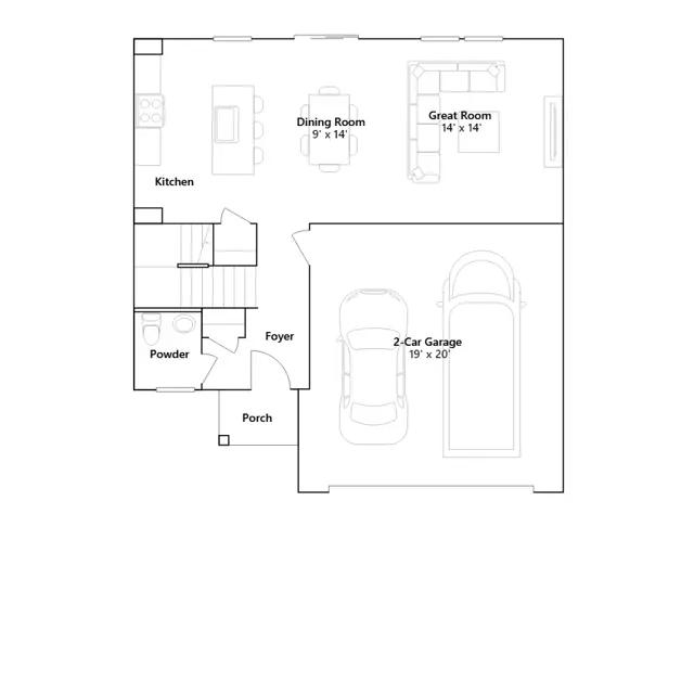
Thoughtfully designed, this new single-family home features two stories of generous living space. Directly off the foyer is a free-flowing layout shared among a modern kitchen with center island, an intimate dining room and a welcoming Great Room for everyday activities. The second floor is comprised of all four bedrooms to offer private retreats. It includes a relaxing owners suite with an attached bathroom and walk-in closet.
Stay informed with Livabl updates on new community details and available inventory.