





































































Get additional information including price lists and floor plans.
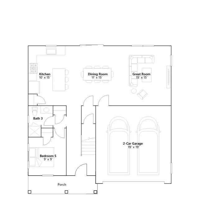
This two-story home features an inviting open-concept layout on the first floor combining the Great Room, dining room and kitchen, with a secondary bedroom located near the entry. Four additional bedrooms can be found upstairs, including the expansive owners suite. A two-car garage completes the layout.
Stay informed with Livabl updates on new community details and available inventory.